At Town of Huntington Expeditors, we draft Architectural plans. Town of Huntington Expeditors specializes in drafting plans & expediting for Dormers & Extension for building permits. You'll need an expeditor or Draftsman to draft floor plans that are accepted by Town of Huntington building department.
Architectural plans at Town of Huntington Expeditors are done with the customer in mind. At our initial meeting, you can convey your ideas to the Town of Huntington Expeditors team and we can provide feedback and suggestions. Most people ask us 'how can I tell you what I am thinking", the easiest way is to print what you like from the internet or home magazines. Your feedback will allow us to determine the focus and direction of the assignment. Drafts are essential checkpoints where you can review your progress and determining if the assignment is on track.
Town of Huntington Expeditors can help you to create a prominent layout for all your furniture needs and much more. To begin, when we are dealing with the furniture layout we are helping you to acknowledge that the size of your furniture and the size of the room is a crucial step in your layout process. For instance, we are making sure that the windows and doors of the room will be placed in the correct locations. Proper positioning is key in this step because you, as the customer, will visualize and grasp the idea of how large a room needs to be. We are knowledgeable in site plans showing irrigation, landscaping, drainage, and parking calculations.
In addition to creating a prominent layout, Town of Huntington Expeditors can also provide an estimate of the cost of construction so that you are ensured of not over your budget. We are very attentive when it comes to being within budget for our customers and their projects. We never want to make our customers feel overwhelmed when it comes to these issues. Furthermore, we will help you to guarantee that you are not also overdesigned for the specific neighborhood that you will begin construction in. Our clients are also entitled to be informed if there are any zoning issues that they should be made aware of. It is necessary for our company to notify our clients if there are any variances for the house they are building for their property.

Commercial Drafting Project

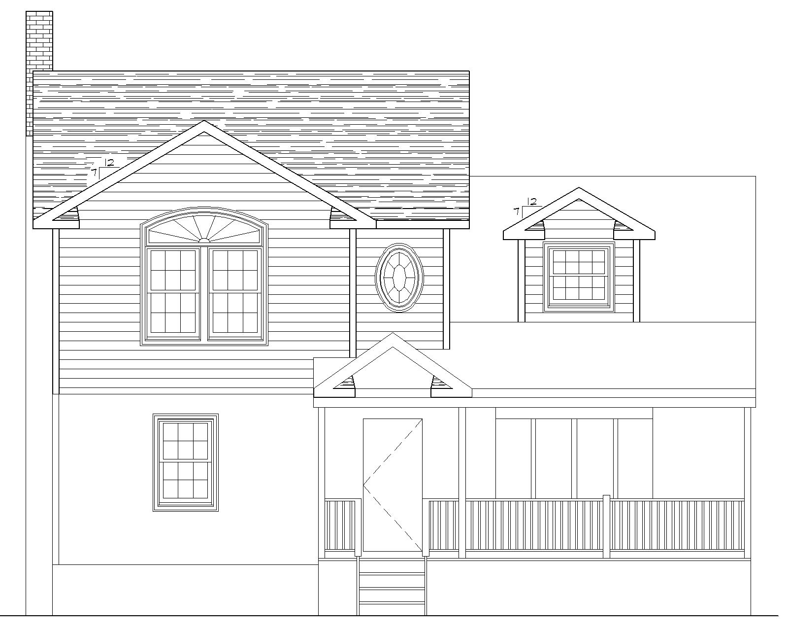
Residential Drafting Project


